Wohnstätte Kiefernweg
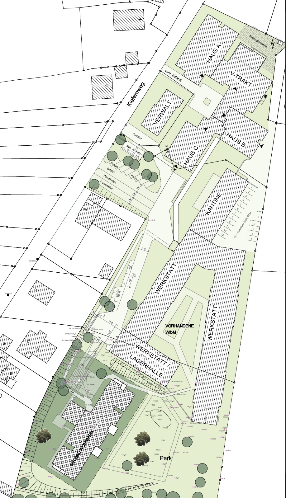
Der Wohnbereich Kiefernweg befindet sich am Rande eines Naherholungsgebietes. Einkaufsmöglichkeiten sind fußläufig zu erreichen. Eine Barriere freie Bushaltestelle in etwa 100 Meter Entfernung wird von zwei Stadtbuslinien angefahren.
Nach Beendigung der umfangreichen Baumaßnahmen im Wohnbereich werden hier in zwei Häusern Wohnmöglichkeiten für über 40 Leistungsberechtigte bestehen.
Das ebenfalls auf dem Gelände angesiedelte Werkstattgebäude ist über ein Leitsystem sicher zu erreichen. Ebenso eine Barriere frei nutzbare Gartenanlage.
Angebot im und um das Haus
- Barriere frei zugängliches Wohlfühlbad
- Entspannungszonen ermöglichen den Rückzug nach dem Arbeitsalltag in der WfbM
- Mehrzweckräume bieten Platz für Gemeinschaftsaktivitäten

